Rumah Kontainer 2 Kamar Tidur
Atap berbusa PU terintegrasi, tahan air 100 persen dan insulasi yang lebih baik;
Sistem kelistrikan dan perpipaan tertanam;
Pintu dan jendela prefabrikasi;
Pengemasan SOC untuk penanganan yang mudah;
Waktu pemasangan 8 Jam.
perkenalan produk
Keuntungan
Spesifikasi Rumah Kontainer 2 Kamar Tidur
Atap berbusa PU terintegrasi, tahan air 100 persen dan insulasi yang lebih baik;
Sistem kelistrikan dan perpipaan tertanam;
Pintu dan jendela prefabrikasi;
8 jam waktu perakitan untuk satu unit
Pengepakan SOC, satu unit per paket;
Dengan sistem talang dan pipa, bisa juga menambah atap LGS ekstra;
Dengan perhitungan struktur
Set lengkap desain konsep dan petunjuk pemasangan
Bisa dibangun di tiga lantai
Kombinasi gratis untuk memenuhi kebutuhan ruang Anda
Pilihan warna yang berbeda
Harga bersaing
Dapat dipindahkan atau dibongkar dan dipasang kembali
Bisa dengan kamar mandi
Kami juga memiliki rumah kontainer yang dapat diperluas untuk proyek perumahan berbiaya rendah
Kami memiliki rumah kontainer yang dapat dilepas untuk proyek kamp berbiaya rendah
Kami memiliki struktur baja untuk proyek gudang / bengkel
Barang | Spesifikasi |
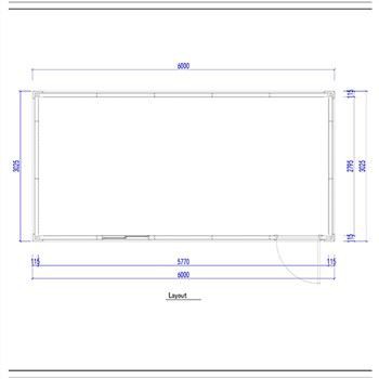
Ukuran | 6000*2438*2591mm |
Struktur baja | Struktur baja pabrikan |
Panel Dinding | {{0}}.326/0.376/0.426/0.476mm lembaran baja THC |
| 50/75/100mm THC EPS / wol batu / wol kaca / panel sandwich PU | |
Ketahanan Gempa | Kelas 8 |
Kapasitas Beban Salju Atap | 1kn/m2 |
Kapasitas Beban Langsung Atap | 1kn/m2 |
Pemuatan yang Diizinkan Dinding | {0}{}.6kn/m2 |

spesifikasi
Panel dinding
Bahan isolasi: EPS (pada kerapatan 10~16kg/cbm), PU (pada kerapatan 40kg/cbm) atau rockwool (pada kerapatan 80~120kg/cbm);
Ketebalan: 50mm, 75mm atau 100mm;
Ketebalan pelat baja: {{0}}.35~0.6mm;
Pilihan warna: putih, biru, merah, hijau, kuning;
Kami memiliki panel dinding standar dan panel dinding dengan pintu atau jendela, spesifikasi sebagai petunjuk di bawah ini:


Semua jendela atau pintu dibuat dengan baik di pabrik kami, semua panel dinding memiliki dimensi yang sama sehingga Anda memiliki fleksibilitas untuk mengatur ulang posisi pintu dan jendela.
Sistem bingkai
Rumah Kontainer CBC 2 Kamar Tidur menggunakan baja galvanis Q345 untuk rangka utama. rangka atap dan rangka rangka dilas penuh dalam platform operasi untuk membuat semua anggota berada pada posisi yang benar.
Saluran listrik disetel ke dalam rangka atap karena kami akan menyuntikkan busa PU ke atap dan membuatnya menjadi satu kesatuan yang utuh. atap ini dipatenkan dan kami adalah satu-satunya yang menyediakannya dengan kekencangan dan kekuatan yang sempurna.


Kami menggunakan pelat baja kekuatan tinggi galvanis dengan ketebalan 6mm untuk membuat bagian sudut kontainer, semua spesifikasi mengikuti standar ISO sehingga kami dapat menggunakannya untuk mengangkat dan memindahkan rumah kontainer setelah dipasang dengan baik.

Ketebalan keempat tiang berada dalam 2,3 ~ 3mm tergantung pada persyaratan pemuatan terperinci. jika kita akan membangun di beberapa lantai, sebaiknya kita menggunakan tiang yang lebih tebal karena akan menahan beban.
Spesifikasi lengkap rumah kontainer flatpack
1) Balok dan kolom baja: ketebalan dari 2,3 ~ 4mm,
pengobatan: galvanis dan dilapisi dua lapisan cat anti-korosif;
2) Panel dinding: opsi ketebalan 50mm, 75mm atau 100mm;
Pilihan isolasi adalah EPS, PU dan Rockwool;
3) Sistem atap: PU menyuntikkan atap terintegrasi dengan sistem kelistrikan tertanam,
Langit-langit: pelat baja warna;
4) Lantai: Papan semen serat dalam 18mm dan lantai PVC, semuanya selesai di pabrik;
5) Jendela: ukuran 800*1100mm untuk ruang tamu dan 800*400mm untuk kamar mandi, di PVC atau Alu.. ketenaran;
6) Pintu: ukurannya adalah pintu keamanan baja 900 * 2050mm, pintu bagian dalam akan menjadi alu. pintu lipat atau pintu panel sandwich.

Aplikasi
Kantor lokasi konstruksi atau kamp akomodasi;
Kantor lokasi pertambangan atau kamp akomodasi;
Ruang isolasi;
rumah sakit COVID;
Kantor sementara atau rumah tinggal
Rumah murah;
Flat halaman belakang nenek;
stan kios;
Rumah jaga;
Sewa untuk penggunaan sementara lainnya.

Proyek Terkait
| Nama Proyek | Kamp Akomodasi MTI | ||
| Waktu Selesai | Tahun 2022 | ||
| Tempat Proyek | Indonesia | ||
| Luas bangunan | 288 kamar dengan kamar mandi dalam di tiga lantai, 8 gedung | ||
| Deskripsi Proyek | 8 Bangunan akomodasi staf untuk PT. Emas Tembaga Merdeka. Setiap blok di tiga lantai, 12 kamar dengan kamar mandi dalam di setiap lantai, 36 kamar digabungkan menjadi satu blok. Desain CBC, menyediakan semua bahan, aksesori, fasilitas dalam waktu dua bulan. | ||
| Nama Proyek | Kamp Akomodasi AMMAN | ||
| Waktu Selesai | Tahun 2022 | ||
| Tempat Proyek | Indonesia | ||
| Luas bangunan | 480 kamar dengan kamar mandi dalam | ||
| Deskripsi Proyek | 6 Bangunan akomodasi staf untuk AMMAN. Setiap blok di dua lantai, 40 kamar dengan kamar mandi dalam di setiap lantai, 80 kamar digabungkan menjadi satu blok. Desain CBC, menyediakan semua bahan, aksesori, fasilitas. Semua pod disesuaikan untuk klien kami. |

Nama Proyek | SK Chili Camp |
Waktu Selesai | Tahun 2014. |
Tempat Proyek | Chili |
Luas bangunan | 256 unit |
Deskripsi Proyek | Desain kamp yang dibuat khusus untuk SK di Chili, digunakan sebagai kantor, akomodasi, dan area umum, termasuk jalan setapak dan sebagian atap. Sistem kelistrikan standar Chili |
Nama Proyek | Perkemahan Di Laos |
Waktu Selesai | Tahun 2016 |
Tempat Proyek | Laos |
Luas bangunan | 120 unit |
Deskripsi Proyek | 2 Kamar Tidur Rumah Kontainer di dua lantai untuk akomodasi. Beberapa dengan kamar mandi, juga termasuk beberapa shower dan toilet umum. Menyediakan seluruh paket termasuk sistem tangga dan atap. |
Nama Proyek | fasilitas Laos |
Waktu Selesai | Tahun 2017 |
Tempat Proyek | Laos |
Luas bangunan | 26 unit |
Deskripsi Proyek | 20FT Flat Pack Container Homes dan fasilitas lainnya termasuk gudang struktur baja |
Nama Proyek | Perumahan Venezuela |
Waktu Selesai | Tahun 2013 |
Tempat Proyek | Venezuela |
Luas bangunan | 560 unit |
Deskripsi Proyek | Rumah kontainer untuk proyek perumahan murah di Venezuela. |

FAQ
T.Siapa kamu?
A. CBC adalah penyedia teratas untuk solusi bangunan khusus yang berbasis di kota Hangzhou, Cina.
T: Bagaimana dengan instalasi?
A: Kami akan memberikan gambar instalasi terperinci, instalasi pemandu pengawas juga tersedia. Kami dapat melakukan pekerjaan turn-key untuk beberapa jenis proyek.
Q: Apa keuntungan bekerja sama dengan CBC?
A: Untuk bekerja sama dengan CBC sehingga Anda dapat memperoleh manfaat dari layanan profesional yang diberikan oleh tim insinyur dan tim komersial:
Respon cepat;
Penghematan biaya;
desain gratis;
Berbagai pilihan untuk memenuhi kebutuhan khusus Anda;
Solusi satu atap untuk menghemat waktu dan min. masalah komunikasi;
sistem BIM yang dapat diandalkan untuk jangka waktu proyek;
T: Bagaimana Anda dapat menjamin bahwa Rumah Kontainer 2 Kamar Tidur dapat disetujui oleh otoritas setempat?
A: 1) Semua desain yang disesuaikan berdasarkan kebutuhan rinci Anda;
2) Semua bahan dapat memenuhi standar lokal;
3) Perhitungan struktur disediakan gratis untuk membantu mendapatkan persetujuan;
4) Lebih dari 10 Tahun pengalaman proyek luar negeri mempersiapkan kami dengan baik untuk setiap pertanyaan.
Q: Bagaimana proses untuk memulai kerjasama?
A:
Untuk memberi tahu kami kebutuhan Anda atau mengirim desain Rumah Kontainer Paket Datar 40FT;
Konfirmasikan desain khusus kami untuk Anda berdasarkan persyaratan di atas;
Konfirmasikan kutipan berdasarkan desain khusus kami;
Mengatur uang muka;
Konfirmasikan gambar toko dan jelaskan bagaimana kami dapat memenuhi kebutuhan Anda;
Lulus pemeriksaan setelah sekitar 30 hari produksi;
Mengatur pembayaran saldo;
Menerima dan mempelajari petunjuk pemasangan;
Menerima materi;
Selesaikan instalasi dengan mengikuti instruksi dan dukungan teknis online kami;
Gunakan sistem BIM kami untuk layanan pemeliharaan purna jual seumur hidup;
Menghargai rekomendasi Anda atau memesan ulang;
Anda Mungkin Juga Menyukai
Kirim permintaan










